
modRoom XL
ModRoomXL Single Room Prefab Modular Cottages
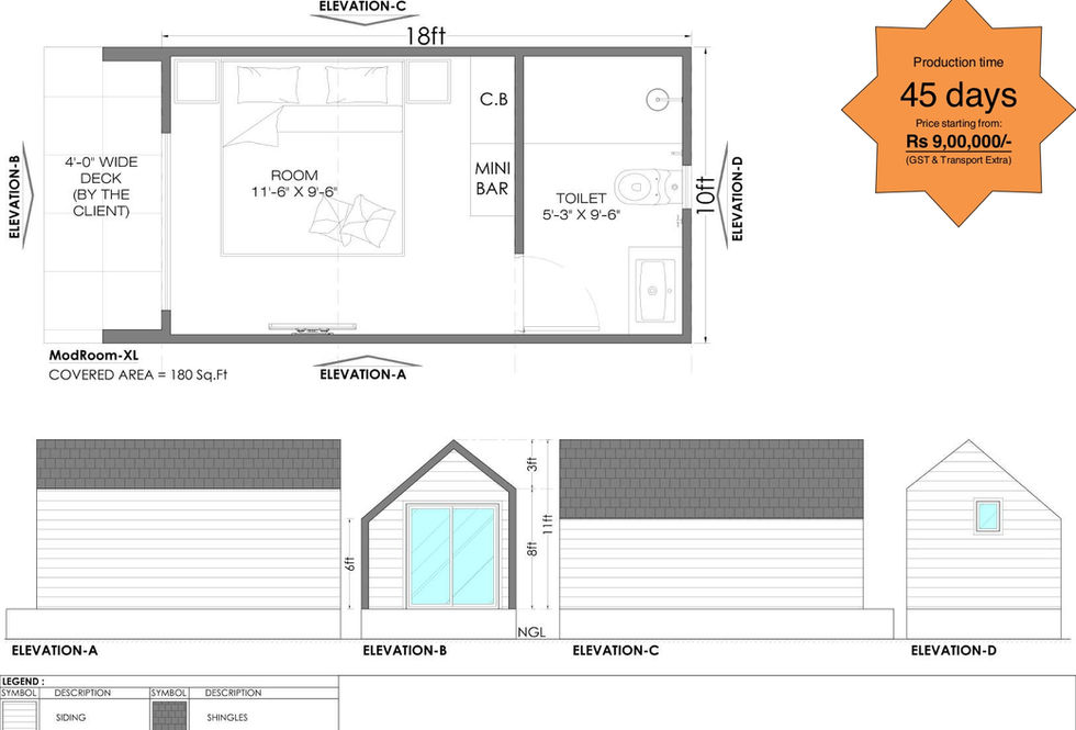
ModRoom XL Single Room Prefab Modular Cottage is a compact and highly efficient luxury prefab design created for smart hospitality and rental-focused developments. Designed as a premium single-room modular cottage, it features a comfortable sleeping area, a modern bathroom, and intelligently planned openings that enhance natural light, ventilation, and overall comfort within a minimal footprint. Available in three built-up area options of 180 sq ft, 297 sq ft, and 360 sq ft, this model is ideal for boutique resorts, glamping projects, staff accommodations, budget-friendly resort rooms, and rental cottages where scalability and fast execution are critical. Manufactured in a controlled factory environment using Loom Crafts’ patented light-gauge steel prefab construction technology, the ModRoom XL delivers excellent thermal and acoustic insulation, superior weather resistance, and long-term structural durability. Priced from ₹9,00,000 onwards (GST & transport extra) with a production timeline of 45 days, this design offers a cost-effective and faster alternative to traditional construction and is backed by a 20-year structural and rain-leakage warranty, making it a reliable solution for compact prefab living and hospitality projects.















