
AlpinePod
AlpinePod
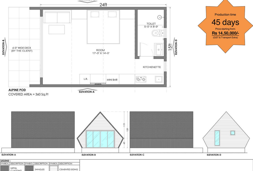
Configuration: Single Room Studio
Covered Area: 180 to 360 sq. ft. (as per layout options)
Production Time: 45 days
Price Starting From: ₹7,75,000/- (GST & Transport Extra)
Inspired by the classic Alpine roof silhouette, the AlpinePod by Loom Crafts blends modern aesthetics with rustic charm, making it an ideal prefab modular cottage for resorts, farm stays, or private retreats. Its sleek A-frame profile is enhanced by a full glass front façade, inviting natural light and providing unobstructed outdoor views, while the compact interior is designed for maximum functionality.
Offered in three spacious layout options ranging from 180 to 360 sq. ft., AlpinePod comes equipped with a cozy sleeping space, well-planned bathroom, mini-bar, and optional kitchenette. Whether it’s a luxurious eco-resort or a serene guest room in the hills, this design delivers style and sustainability with minimal on-site work. The high-quality materials and insulated structure ensure year-round comfort and long-term durability.
Engineered for quick setup and cost efficiency, AlpinePod stands as a perfect solution for hospitality developers looking for elegant yet compact prefab accommodations that can be replicated across terrains.
prefab modular homes India, Alpine A-frame cottage, single room prefab design, compact modular cabin, prefab studio cottages, portable resort cabin India, wooden A-frame prefab pod, modular cottages for farm stays.
















